Modelo Obidos

PDFE-mail
Casa de madera con 160 m2
Modelo Obidos
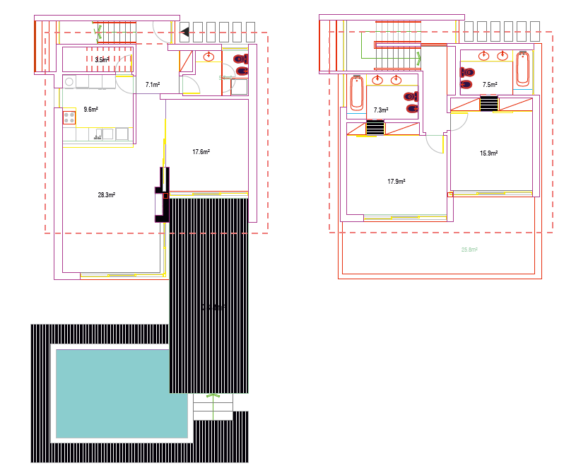
Modelo Obidos Planos
Descripción

1 - Estos precios son para casas con paredes exteriores en troncos calibrados de pino tratado, con doble aislamiento.
2 - Podemos proporcionar a estas casas paredes exteriores con doble aislamiento y ventilación.
3 - Construcciones con montaje en obra y acabados.
4 - Si el cliente tiene la intención de suministrar y aplicar el material cerámico, el cliente debe informar con anticipación.
5 - Los gastos adicionales, indicados en esta tabla, se refieren solo al transporte del material, los viajes del personal de la fábrica al lugar de montaje y sus asignaciones diarias, y deben confirmarse en caso de pedido.
6 - El material cerámico es de medidas 15 x 15 o 20 x 2 cm en las paredes y 30 x 30 cm en los pisos de la elección del cliente, entre los patrones que presentemos.
7 - A los precios de esta tabla se debe agregar los impuestos legalmente vigentes.
8 - Esta tabla puede modificarse sin previo aviso.

Fotos Corporativas
Canal Youtube